Mukautuminen

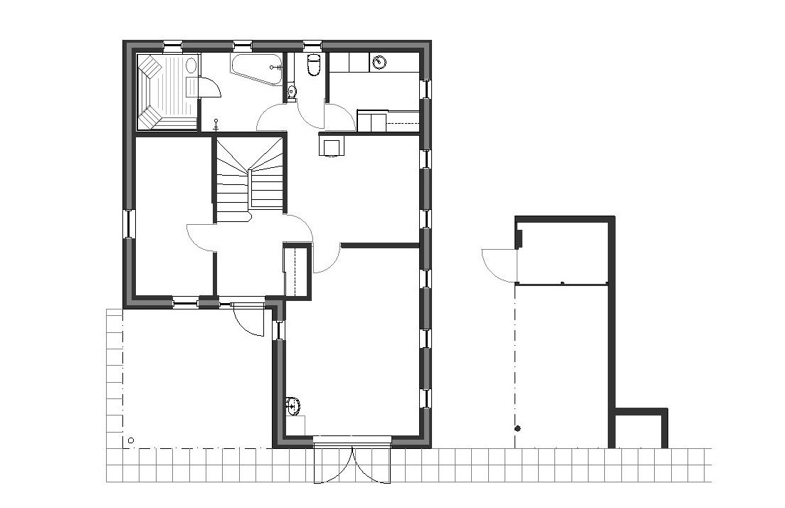
Jos elämäntilanne muuttuu? Asunto muuttuu myös. Yläkertaan saa isompaan makuuhuoneeseen kaksi makuuhuonetta. Eihän ne isoja ole, mutta omat huoneet kasvaville lapsille. Tällöin alakertaan saa edelleen työhuoneen, autotallin ja takkahuoneen...

 

Pohja mukautus

Alakerran tilat muuttuvat perheen mukana. Huone lasten leikkihuoneesta teini-ikäisen omaan rauhaan. Takkahuoneesta peliluolaksi tai leffaillan paikaksi.

Autotalliin ajetaan auto. Toinen laitetaan autokatokseen. Auto väistyy yrittäjän työtilan edestä ja puolikkaassa tallissa talvehtii moottoripyörä. Lopulta eläkkeellä tallissa vaalitaan harrasteautoa...